• PRIVATO VENDE 70 MQ. BILOCALE DOPPIA ESPOSIZIONE - Milano - CITTA' STUDI

  • PRIVATO VENDE 70 MQ. BILOCALE DOPPIA ESPOSIZIONE - Milano - CITTA' STUDI
  • PRIVATO VENDE 70 MQ. BILOCALE DOPPIA ESPOSIZIONE - Milano - CITTA' STUDI
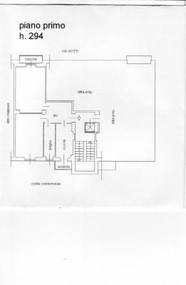
  • VENDO 70 MQ. 2 LOCALI OTTIMO STATO DOPPIA ESPOSIZIONE ADIACENTE P.ZZA BOTTINI (MM2 LAMBRATE) Bus 54-75-924-93  2 Ampie Camere: Camera da letto con parquet (ottimo stato) Soggiorno con balcone lato strada  Cucina abitabile con balcone verandato  1 Servizi  Cantina Tutti gli ambienti sono muniti di infissi esterni in alluminio con doppi vetri Prezzo € 255.000 (trattabili)
    • EUR
  • Rispondi a: luigiocch@inwind.it

Annunci simili

Meraviglioso appartamento ben arredato Etichettatura energetica E-Arancione Strutture...

450

EUR

Vendo appartamento su due livelli sito in San Pietro in Amantea (CS) al civico 98...

60000

EUR

Vendo appartamento su due livelli sito in San Pietro in Amantea (CS) al civico 98...

60000

EUR

PIÙ VISITATI

Via Luigi Cassia, costruzione del 1995, appartamento di quattro vani oltre cucina...

;

Viale Teracati esavani di 180 mq circa, con salone doppio, studio, tre camere da...

;

Bilocale mansardato di recente costruzione a sole € 100.000, 00 con cantina Possibilità...

;

Commenti